Ministria e Kulturës dhe Instituti i Monumenteve të Kulturës, në mbledhjen e fundit të Këshillit Kombëtar të Restaurimit pas shqyrtimit të bërë ka miratuar projektin e rindërtimit të Kishës së Shën Thanasit brenda Qendrës Historike të Dhërmiut.
Lajmin e bën të ditur vet ministrja e Kulturës, Mirela Kumbaro, e cila shkruan se ky jo vetëm që është një premtim i mbajtur, por kisha madje do të rindërtohet ashtu siç ka qenë dhe ashtu siç e meritojnë banorët e Dhërmiut.
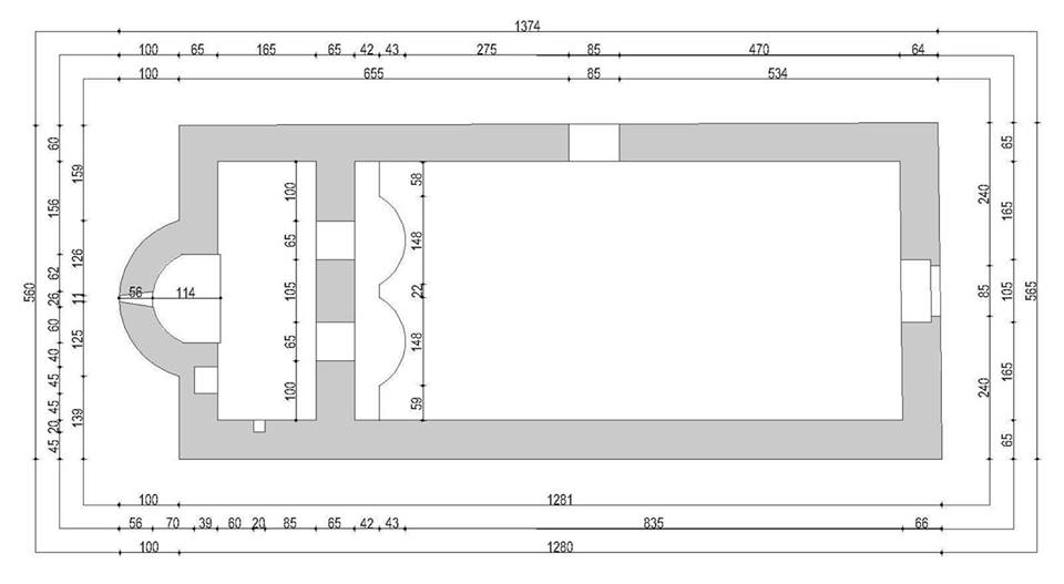
“Ashtu siç ka qenë kur ishte vërtetë një kishë, siç e meriton Shën Thanasi, sic e meritojnë banorët e Dhërmiut, siç profesoret Aleksander Meksi e Pirro Thomo e patën studjuar e rilevuar herët. Eshte siç e premtuam se do ta rindërtonim. Faleminderit Bashkisë së Himarës dhe Kishës Orthodokse Autoqefale të Shqipërisë për bashkëpunimin”,– shkruan Ministrja Mirela Kumbaro në Facebook, ku ka ndarë edhe këto foto të veçanta.
Kumbaro thekson në statusin e saj se “Punët e mira flasin vetë dhe mbeten, zhurma dhe balta trazojnë kazanet po punës s’ia zënë dot vendin”, si një përgjigje për gjithë kritikat që bëhen sidomos për objektet e trashëgimisë.
















